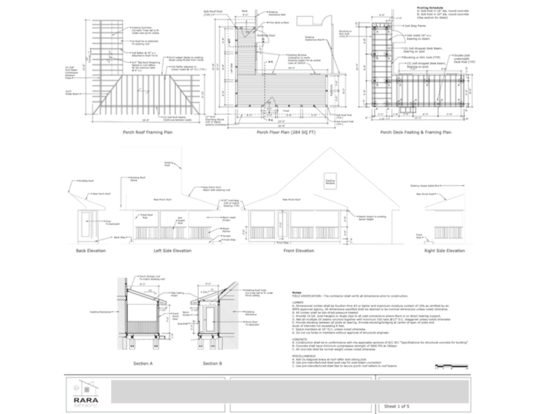
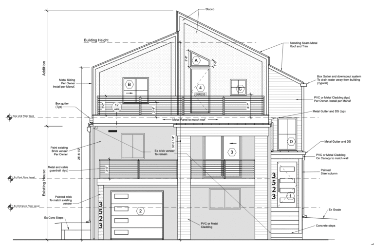
Our drawings ensure your project adheres to local building codes and zoning laws. We support you through the entire permitting process, making your project hassle-free and compliant from start to finish.
Our permit drawings are meticulously created to minimize review comments and expedite permit approval. In addition, the drawings contain enough details to enable smooth construction and hassle free project.



